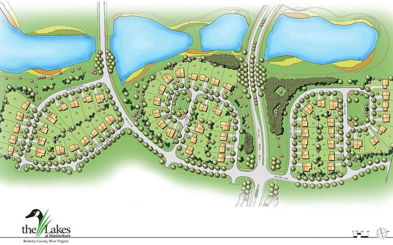
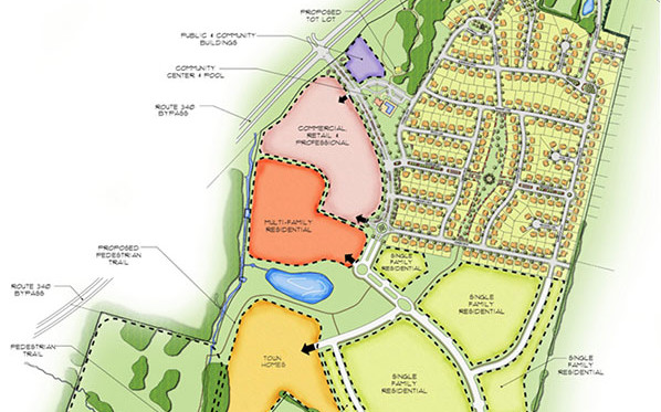
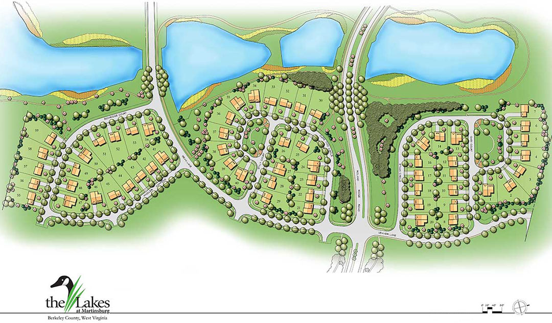
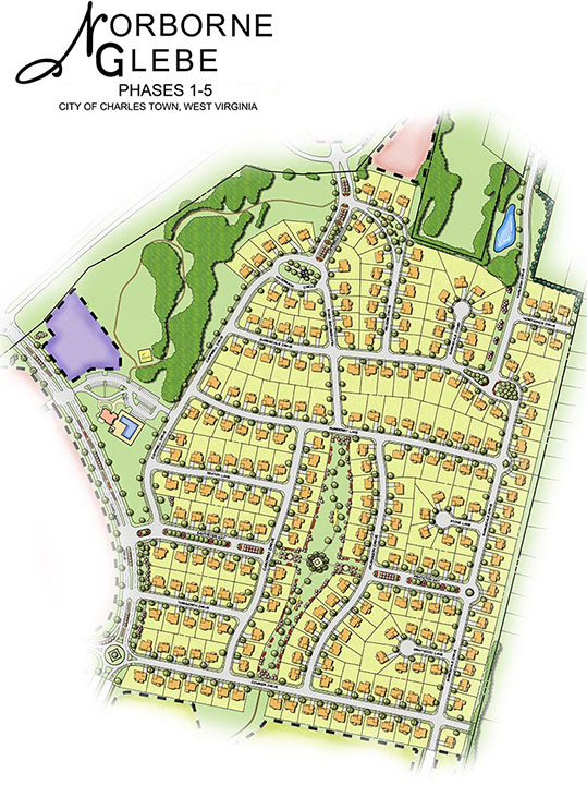
MASTER PLANNING
Creative, progressive, and sustainable solutions are key elements incorporated into GORDON’s Master Planning design practices. We utilize the latest technology to help visualize overall project objectives, which leads to successful developments, communities, and facilities.































